

家,是生活的舞台,
也是心灵的归宿,
它如同一首写不尽的诗,
细腻的笔触、静谧的旋律,
光影的舞蹈、自然的呼吸,
在空间的画布上勾勒出生命的轮廓。
——吴玮力

首开万科璞悦山位于厦门翔安区,坐拥60亩私家山体公园,形成绿肺环绕的天然氧吧。居于城,心在野。本案作为该项目的精装加载样板房,每一个细节都仿佛是大自然精心编织的脉络,阳光汲取、绿意、松弛、自由的感官体验,既有城市的繁华,又有自然的宁静。让人在内卷的当下,找到一个能够安放自我,与家人和宠物共度休闲时光的一片小天地 。
01
细腻的笔触
内心的平静并与之共存




背景墙洞洞板置物架的与其他家具相呼应,构建空间不同层次的递进关系,承担起不同的功能,也不破坏整体的和谐统一。白色的顶面放大了空间的通透感,装饰与细节相得映彰,实现不同区域功能的自然过渡。
02
静谧的旋律
聆听生活的共鸣

设计师通过分色处理,自然区分了客厅的布局,也完成了视觉的过渡与连续,给予空间更多层次之美。素简之下,搭配一幅自然之美的挂画和墨绿色椅子相呼应,步入其中,不仅进一步提升了空间的明亮感,更营造了宁静柔和的氛围。

03
光影的舞蹈
空间的深度得以细腻展现



来到卧室区域,主卧的整体设计更显简约而高雅。软装和家具搭配都恰到好处,营造出一种宁静而舒适的氛围。窗外的光影透过窗帘,轻轻洒在床上,让人仿佛置身于大自然的怀抱中,放下一天的疲惫,享受片刻的宁静与安详。








传达家的生命力



餐厅的设计更是巧妙地融合了现代与自然,井井有条的厨具用品,餐桌及餐椅的线条简洁流畅,与周围的绿植相映成趣。在这里,每一次用餐都像是一次与自然的约会。


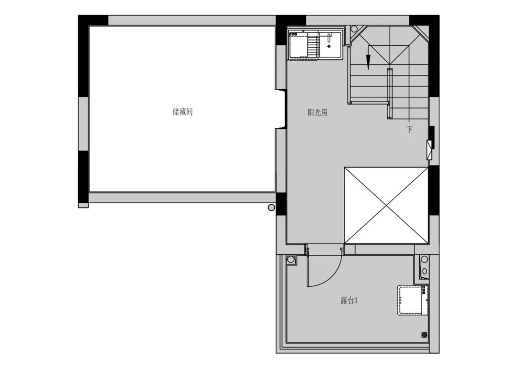
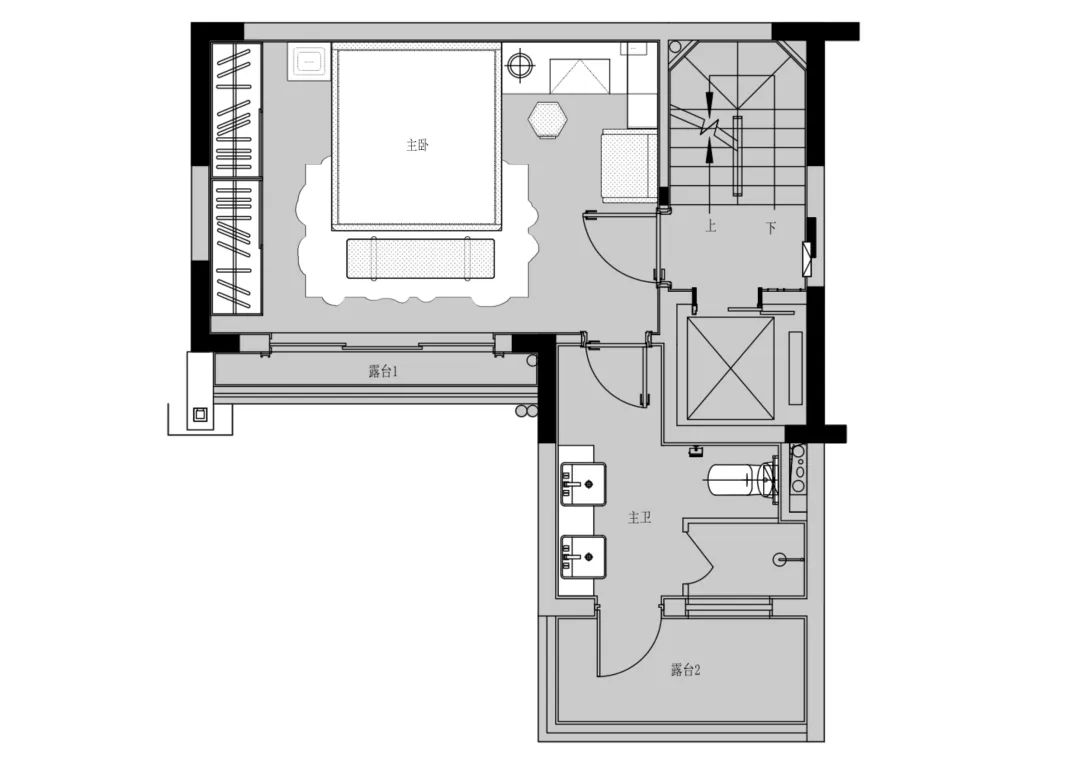
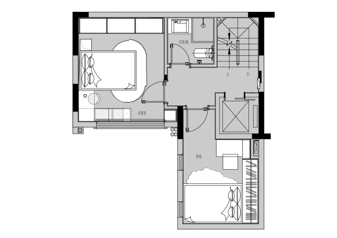
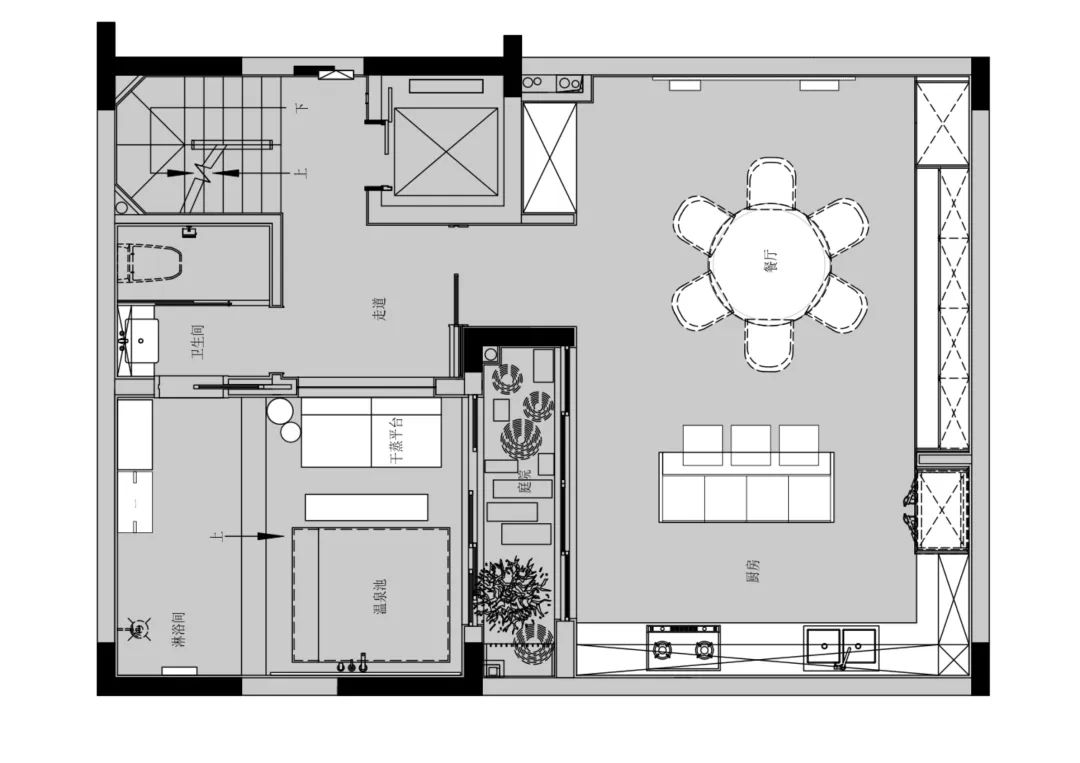
↑向右滑动查看更多平面布局图
项目名称|首开万科璞悦山样板房
项目地点|中国 福建 厦门
设计面积|218m²
完工时间|2024年10月
设计机构|無二设计
主创人员|吴玮力、郑沁楠
项目摄影|郭橘子


























































































































































































































































